近年來隨著我國城市建設向高空和地下發展,深基坑工程越來越多,逆作法施工技術在深基坑支護施工中應用十分廣泛且有了很大的發展,隨著高層建筑的日益增多,對深基坑施工技術的要求也越來越高,在技術上不僅安全可靠,而且要求經濟節約,采用逆作法施工,施工工藝復雜,結構預留預埋多,精度要求高,安全風險大,施工工期長、施工難度大。當前,我國經濟社會發展與資源環境的矛盾日益突出,如何通過科技創新,采用新的設計思維與施工新技術相結合,降低超深基坑地下結構施工占比過高的費用,節約材料、資源并保證施工質量優良、安全、結構可靠是我們應該思考并深人研究的一個問題。

1、工程概況
寧匯大廈項目位于天津市南開區水上公園東路與霞光道交口,總建筑面積51 970mZ,框剪結構,平面軸網尺寸123. 45m x 68m,地下3層,26 370mZ,地上12層,25 600mZ。基坑深度16. 450m,局部集水井深度18. 8m。本工程地基場地類別:111類;屬于非液化場地;場地地層自上而下為:①人工堆積層;②坑底淤積層;③河床一河漫灘相沉積層;④淺海相沉積層;⑤沼澤相沉積層;⑥、⑦濱海一潮汐相沉積層;屬于軟土地基超深基坑。基坑支護體系采用鉆孔灌注樁+止水帷幕+水平支撐。其中第1道水平支撐為臨時支撐,后期進行破除處理,第2,3道水平支撐兼作正式梁板結構,如圖1所示。地下室外墻距支護樁凈距400mm,基坑距離可用地紅線0. 8m。工程建成后,將成為集辦公、商業及旅游觀光為一體的多功能綜合性建筑。
2、工程重、難點
1)基坑距離周圍小區圍墻最寬處3. 5m,最窄處1. $m,基坑開挖過程中居民樓沉降變形控制難度大,施工道路寬度無法保證正常行駛。
2)基坑距離可用地紅線最窄處僅0. 8m,施工現場作業面狹小。
3)項目位于天津市鬧市區中心,揚塵、噪聲污染、夜間施工等控制難度大。
4)半逆作法施工時,地下室外墻結構及節點防水處理難度大,外墻單側支模,施工難度大。
5)基坑距離天津市水上公園僅一路之遙,基坑施工正值汛期,基坑深,軟土地基,施工降抖泳控制難度大。


3、半逆作法創新應用技術
基坑支護體系采用鉆孔灌注樁+止水帷幕+水平鋼筋混凝土支撐,第1道水平支撐為臨時支撐,后期進行拆除,第2,3道臨時水平支撐兼作正式梁板結構,地下室結構施工采用半逆作。這樣將大大節約材料、人工、工期、占地,也減少了后期拆撐產生的揚塵及噪聲污染。
技術特點y與換撐技術的對比分析目前,與超深基坑的支護體系采用換撐技術相比,換撐技術其實質是應力安全有序地調整、轉移和再分配。換撐技術設計工作量大,最合理布設有難度,易被破壞,施工工期長,尤其在后期拆除階段會產生較大的揚塵及噪聲污染,資源利用率低,浪費現象嚴重。
而本工程采用的臨時第2,3支撐兼作正式梁板結構技術的有效實施:①降低基坑支護結構的重心,縮小人土瑛固長度,提高支撐的整體作用效果,避免換撐施工階段可能導致的基坑及周邊建筑物變形量增大的風險;減少后期破除量,建筑垃圾產生量減少;③避免換撐工序,土方開挖等后續工序可盡早插人,縮短整體施工工期;④減小揚塵及噪聲污染;⑤節約材料。
技術應用介紹
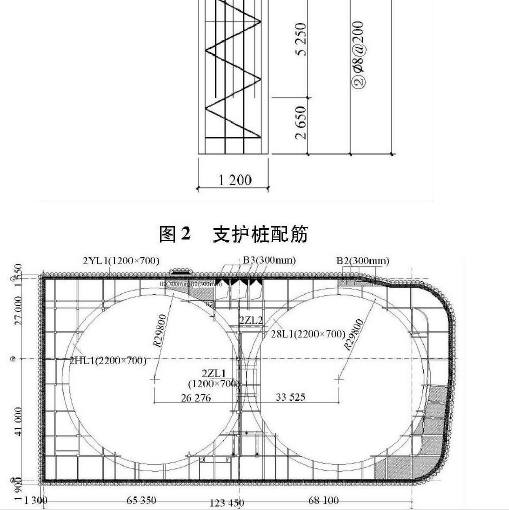
本工程支護系統設計確定支護樁樁頂位于地表以下2m,樁徑1.2 m,樁長26m,共設279根,水泥土攪拌墻墻頂位于地表以下lm,有效深度32. 5m,周長約400m。水平支撐采用鋼筋混凝土結構,共設3道,每道支撐與支護樁之間設置1道封閉腰梁,不設帽梁,其中第2,3道水平支撐兼作正式結構樓板,第1道水平支撐在施工正式樓板前需要拆除。支撐結構豎向采用立柱及托樁支頂,其中,立柱采用} 200 x 18等邊角鋼焊接為鋼格構柱,立柱截面尺寸500mm x 500mm,支托樁樁徑為cb850mm,樁體混凝土采用C25 ,鋼格構柱頂部錨人支撐梁及環梁內,鋼格構柱下部錨人支托樁內2 500mm。支護樁配筋如圖2所示。第2,3道支撐梁板平面如圖3 ,4所示。

1)支撐結構兼作正式梁板結構工藝流程
第1步土方開挖(至第1道支撐梁底)、第1道支撐梁施工、第2步土方開挖(至第2道支撐梁底)*第2道支撐梁板結構施工、第3步土方開挖(至第3道支撐梁底)、第3道支撐梁板結構施工、第4步土方開挖(至地下室底板底)及底板結構施工、地下3層外墻、框架柱施工、地下3層環梁內梁板結構封閉地下2層外墻、框架柱施工及環梁內梁板結構封閉。第1道支撐拆除、地下1層結構及以上結構施工。
2)換撐施工工藝流程
第1步土方開挖(至第1道支撐梁底)、第1道支撐梁施工、第2步土方開挖(至第2道支撐梁底)。第2道支撐梁板結構施工、第3步土方開挖(至第3道支撐梁底)、第3道支撐梁板結構施工、第4步土方開挖(至地下室底板底)及底板結構施工、地下3層結構施工、換撐及第3道支撐拆除、地下2層結構施工、換撐及第2道支撐拆除、地下1層結構施工*換撐及第1道支撐拆除、士0. 000以上結構施工。
操作要點:
1)在進行第2,3道支撐結構施工時,需提前在外墻導墻處按照間距2m預留混凝土澆筑鋼導管。方便后期地下外墻混凝土澆筑。
2)環梁及地下外墻鋼筋甩筋位置應準確,保證后期鋼筋連接長度及接頭面積百分率符合要求,同時應采取防銹措施。
3)部分人防區頂板及墻體應按人防密閉要求提前預留止水鋼板,并與鋼筋可靠連接。
4)地下室外墻采用自密實混凝土,應重點控制混凝土礦物摻和料、和易性,通過試驗確定合理的配合比,保證混凝土澆筑質量。
5)支撐結構施工時,應注意做好支護樁與腰梁節點處防水,保證防水完整性。同時,對植筋部位采用防水圈等處理方式,避免地下室外墻漏水。
技術指標:
1)軟土地基支撐結構兼作正式梁板結構施工技術符合《建筑地基基礎設計規范》GB50007-2011及《地下建筑工程逆作法技術規程》JGJ165 2010相關規定,設計參數根據具體的支護形式合理取值。
2)豎向立柱的沉降,滿足主體結構的受力和變形要求。
本工程基坑位移監測報警設計值2$mm,臨近建筑物允許累計沉降報警值為20mm。基坑沉降穩定后實際位移監測累計值23. 4mm,周邊建筑物累計沉降量18. 97mm,均滿足要求。同時,此種方案的有效實施,不僅節省了支撐混凝土、鋼筋及模板用量及人力,也減小了換撐過程中可能對基坑擾動相對較大,對基坑變形控制不利的影響,省去拆撐工序及在換撐過程中正式結構混凝土的養護時間,大大縮短地下結構施工工期,對控制揚塵及噪聲污染有利,提高材料利用率。經測算,節約混凝土約2 400m3、鋼筋300t、模板5 OOOm},工期節約約30d,直接經濟效益約326萬元。




